san juan island treehouse

Were you to kayak along the western shore of San Juan Island you might catch a glimpse of this multi-level, towering woodland folly, partially obscured by madronas, captained by three rambunctious little kids.

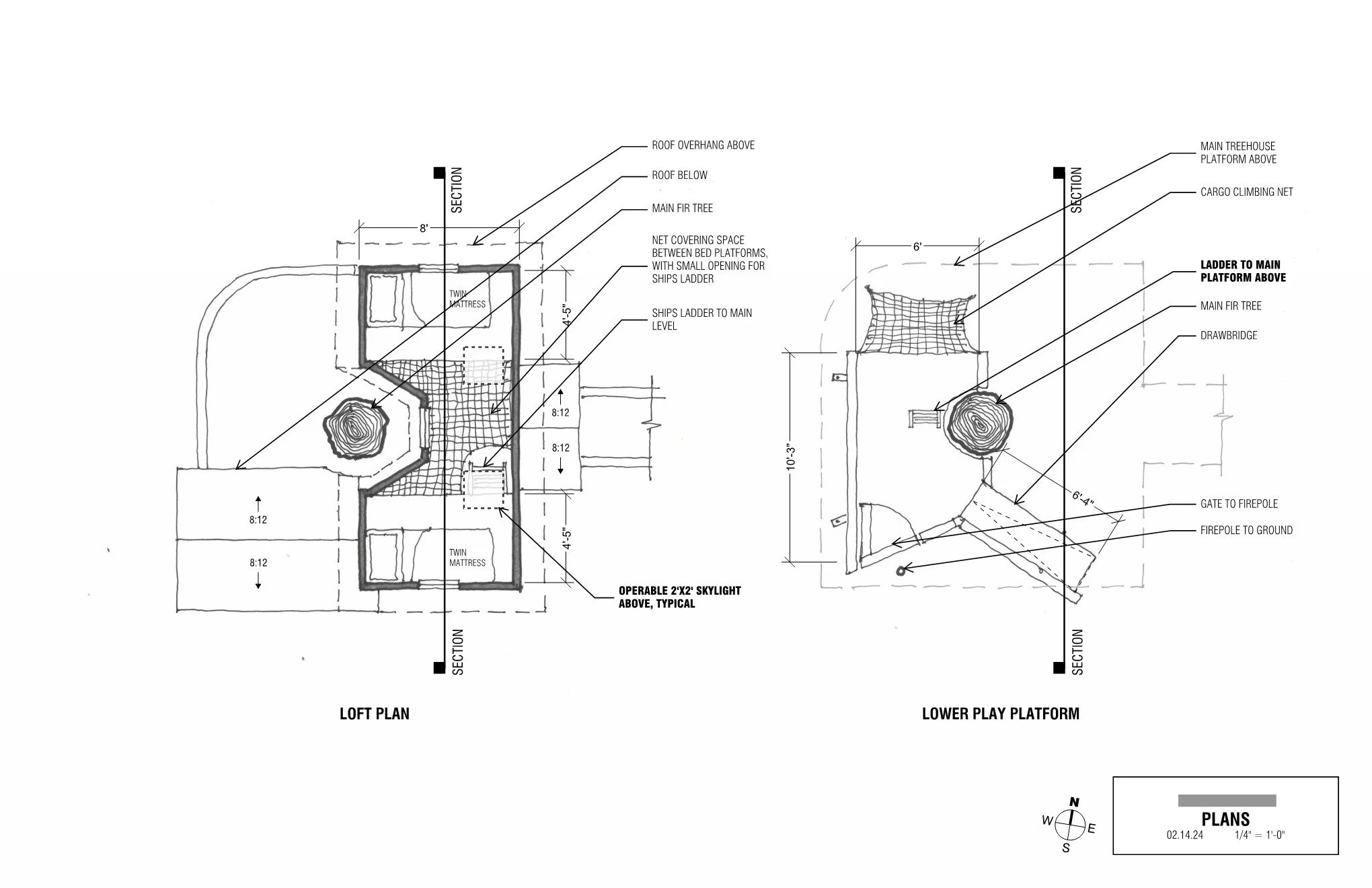
The grandparents of these children, our clients, envisioned a “classic” treehouse for their spectacular waterfront property; compact, playful, rustic and, of course, accessed via bridge. We worked within a few key constraints. First; we needed to design and build the structure around a single fir tree*, and second; because the tree was located within the shoreline setback, the footprint had to remain under 250 sf (a San Juan County permissible loophole).

The resulting custom steel platform houses a 180 sf enclosed space with just enough room for 3 beds, and a small table. One full bed tucks into a precisely-sized nook, while two twins hover on small platforms above the main space, connected via net and accessed via ships ladder. The remaining 60 sf of platform space is dedicated to a deck with sweeping water views. A trap door nestled near the tree door opens to a ladder that descends to a lower “play” platform. The lower platform, partially hung from the platform above, can be secured from prying adults with a drawbridge, or quickly escaped by firepole.

*The fir tree was found to be hollow when the crew arrived on site. The client and our team opted to keep the tree in the place. Instead of attaching to the tree as originally planned, two beams were installed underneath the custom steel platform, supported by telephone poles on the downhill side and anchored into the hillside with large concrete plinths on the other side. Safety measures were taken to top off the crown and remove branches - the treehouse structure will help to stabilize and shelter the remaining trunk.

Nelson Treehouse and Supply

project site: San Juan Island

size: 250 SF (interior + deck)

project status: construction complete

all photos courtesy of Sammy Spence

https://www.wellwandered.com/

Previous
Previous

NTS / colorado treehouse

Next
Next

PERSONAL / watercolors